Editor's Note: This story has been updated to note an award received for the project and to include a picture gallery including recent pictures of the Ogden Business Exchange.
The Ogden Business Exchange (OBE) is a redevelopment project, led by Ogden City, which has transformed the historic Ogden stockyards into a 51-acre lifestyle business park. This project won an award in the "Real Estate Redevelopment and Reuse" category at the International Economic Development Council (IEDC) 2020 Conference; read more here.
By the time Ogden City started the OBE redevelopment project, the Ogden stockyards had become known for frequent crime, environmental blight, and defunct and crumbling structures and buildings. The site generally lacked a productive use and perpetuated a negative stigma and an environmental injustice for the West Ogden community. And had been undeveloped for over 40 years.
Historically, the project site was known as the Ogden Union Stockyards, which operated from 1917–77. It was known as the biggest stockyard west of Denver, produced the modern equivalent of approximately $1.3 billion in commerce, and employed hundreds of people in Ogden and the surrounding area. In the 1970s, because of changes in food production and transportation, both the stockyards and all associated processing plants declined and closed. The property changed hands several times over the years, eventually falling into disuse and dilapidation.
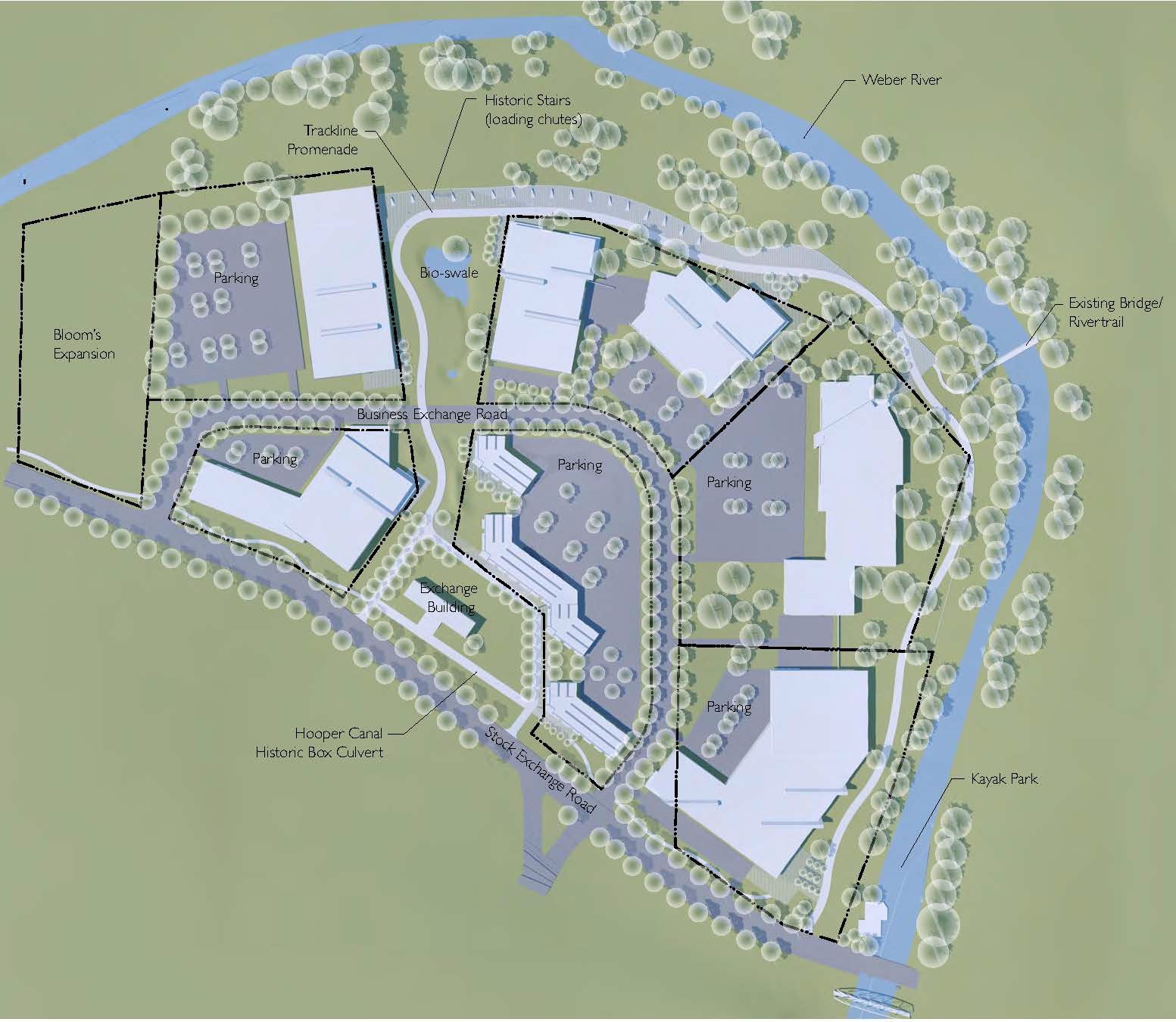
The goal of the OBE project was to restore and revitalize this blighted area and create a lifestyle business park, which preserved history, invested in the community, and created a location for companies to grow in a unique work environment. Ogden City put together a plan for environmental remediation, demolition, and infrastructure work. The city then partnered with a developer to build the business park, creating nine individual lots with the historic Exchange Building (circa 1930) as the centerpiece, and started selling those lots to private businesses.
Ogden City worked to preserve and exhibit the stockyard’s history and plans to support restoration of the Exchange Building and display site artifacts, historical documentation, and interpretive signage to tell the story of the stockyards and their historical value. A Historic American Landscapes Survey was also completed, and a history class at Weber State University spent over two months collecting stories and pictures from the public.
As a former stockyard, the land itself had environmental issues. Animals would often need to be dipped in a chemical designed to kill bugs and other contaminants. These chemicals, and some heavy metals, had leeched into the soil and the ground water, necessitating a lengthy cleanup process involving the Utah Department of Environmental Quality and the EPA.
Additionally, the business park required completely new water, sewage, power, communication, and transportation infrastructure. The city also created an innovative, low-impact, and award-winning storm water drainage system, which puts about 60% of the water back into the ground and cleans the other 40% to a high enough standard to allow it to be pumped back into the river.
The OBE project also addressed a number of environmental justice issues. The West Ogden area has faced substantial environmental injustice—two dumps, a transfer station, and a defunct stockyard in their neighborhood for decades. Not only do these factors affect the quality of the environment, they also tend to prevent other types of investment in the community. Removing the waste and detritus from the stockyard, and the subsequent redevelopment projects, acted as the catalyst for improved community growth and vitality. Since 1970, entire sections of the Weber River had become completely inaccessible, because the surrounding land was all private property full of debris. By improving the property along the river and introducing public easements for direct access, the city has been able to reintroduce a unique and memorable recreational amenity to the West Ogden community.
The OBE project was led by the Ogden City Community and Economic Development Department, with development partner OBE Vision, LLC. The U.S. Department of Housing and Urban Development, Economic Development Administration, and Environmental Protection Agency also provided project funding.
Weber County and the Ogden School District were partners with the Ogden City Redevelopment Agency (RDA); they participated with tax increment financing to the project. Additionally, a local group called Ogden Industrial Development Corporation—local business leaders with a vested interest in Ogden’s future—helped to bridge the gap with funding for this innovative development project. In total, the project had eight funding sources, including local and federal grants, city revenue and tax increment financing, and private investment—all totaling just under $35 million for the entire project.
Ogden wasn’t just creative with financing, however; the city took a particularly unique approach to demolition—30 of the 51 acres at the project site were initially covered in six inches of concrete. In its heyday, the Ogden Union Stockyard was considered the Ritz Carlton for animals; instead of dirty/muddy pens, the concrete allowed for animals and their pens to be sprayed down, and an underground drainage system with culverts connecting the pens drained into the Weber River. For the OBE project, somewhere north of 30,000 tons of concrete was crushed, recycled into local road base, and put back into the streets.
The first business to find a home at the newly redeveloped OBE was ENVE Composites, an international bicycle wheel and components manufacturer. Facing rapid growth, ENVE had outgrown their previous facility. ENVE jumped at the chance to build a facility in an area consistent with the image of their outdoor products company. This expansion allowed ENVE to not only retain their existing 100+ jobs but to grow to over 200 jobs. Another major cycling brand, Selle Royal/SR56, has opened an R&D facility at OBE.
Two craft beverage producers are now located at OBE: Ogden’s Own Distillery, which converted large portions of their manufacturing process to produce hand sanitizer early on during the COVID-19 pandemic, and Roosters B Street Brewery, which is a new production facility and taproom for long-time Ogden brewing company Roosters Brewing Co. Also located at the OBE is Enable Utah, an Ogden nonprofit providing job training, life skill development, education, and support to disabled members of the community.
Overall, the OBE has been dramatically transformative in the removal of blight and in the creation of jobs, but it has allowed for progress on other projects made possible only by the redevelopment efforts at the OBE. Ogden City is now doing work on the restoration of the Weber River to make it more accessible as a recreational amenity, both for OBE businesses and the community. Ogden City is also now working on the redevelopment of the former Swift Meat Packing site to convert it into a 111,000 SF manufacturing and distribution facility.
Ogden has always been willing to spend time and money to preserve its history and invest in catalytic projects. Experiences with OBE have served only to reinforce the importance of those ongoing efforts. One of the biggest success stories with the OBE was in transforming a historic stockyard into a lifestyle business park with outdoor recreation amenities capable of attracting both capital partners and businesses. Supporting the growth of local companies at the OBE, like ENVE, was also crucial in gaining the support of the community.
Ultimately, there was no template for the OBE project. The city made a strategic investment in a catalytic project, despite many unknowns. The aim was to develop the site and infrastructure in a way that would support a broad range of companies. The city believed in the redevelopment project, Ogden’s ability to attract business growth, and the opportunity to bring new investment into the community.
Despite the obstacles and unknowns, the OBE project is truly unique in its innovation, scale, performance metrics, and involvement of community and federal partners.
Photo Gallery: To view any image at full size, right-click the image and "Open in new tab."